微信谘詢
在線定製
歡迎進入18luck新利官網!
消防設備銷售消防工程安裝公司

解決(jue) 消防係統安裝改造、消防維修檢測、探測器清洗等問題

4006-598-11918910580194
聯係我們Contact us
全國谘詢熱線18910580194

18luck新利

公司地址:江蘇省蘇州市常熟市黃河路275號

聯係電話:4006-598-119

公司郵箱:1334605518@qq.com

您的位置:首頁>>新聞資訊>>行業百科
行業百科

如何驗收排水係統預埋、人防門框預埋及堆放

作者: 發布時間:2025-01-14 09:41:50點擊:2975

信息摘要:

image.png

排水係統預埋

防爆波地漏

防空地下室的每個口部都設置了防護排水係統,它由集水井、排水管、防爆地漏等組成,底板施工時,該係統應預埋進底板。

底板上的集水井、排水管漏埋是無法整改的。

防爆地漏:戰時能防止衝擊波和毒劑等進入防空地下室室內的地漏。

防爆地漏管道材料為(wei) 鍍鋅鋼管,連接方式為(wei) 絲(si) 接,需加麻絲(si) ,白厚漆。管道伸進集水坑100mm,焊接鋼製彎頭並接管至坑底200mm。地漏蓋板標高低於(yu) 地坪5~10mm,刷兩(liang) 道瀝青漆,支口上黃油,保證蓋板能在地漏支口內(nei) 靈活轉動。

image.png

集水井

image.png

image.png

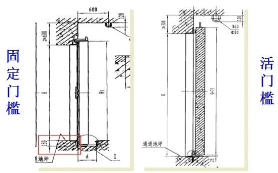
人防門框預埋

固定門檻:門檻與建築地坪高差一般情況下應≧150mm(鋼結構單扇人防門門檻≥130mm),鋼筋綁紮高度宜≥250mm。

活門檻:門下無門檻,門前大小梁。門框下邊與(yu) 建築地坪同高,鋼筋綁紮高度宜≥100mm。人防門框錨鉤應伸入結構層內(nei) 。
防護密閉門、密閉門、懸板活門的開啟方向必須麵向衝(chong) 擊波來的方向。人防門框應預埋在靠近衝(chong) 擊波的一側(ce) ,一旦方向弄錯,人防門戰時將不起作用。

image.png


活門檻

活門檻正確做法:

  1、人防門扇啟閉方向設置兩(liang) 道梁;
  2、兩(liang) 道梁間距宜控製在50-100mm;
  3、梁高應根據建築地坪高度控製。

image.png

鋼筋混凝土人防門

image.png

鋼結構單扇人防門

image.png

image.png

八字加強筋

人防門洞四角必須設置加強筋:長度1000mm,斜45º綁紮,牆厚≦400mm,每角2φ16;牆厚>400mm,每角3φ16。

人防門洞四角均應設置八字加強筋。
image.png
image.png

水防爆波地漏




本文標簽:
在線客服
聯係方式

熱線電話

18910580194

上班時間

周一到周五

公司電話

4006-598-119

二維碼