一、消火栓(箱)安裝
➣ 消火栓(箱)安裝基本要求:
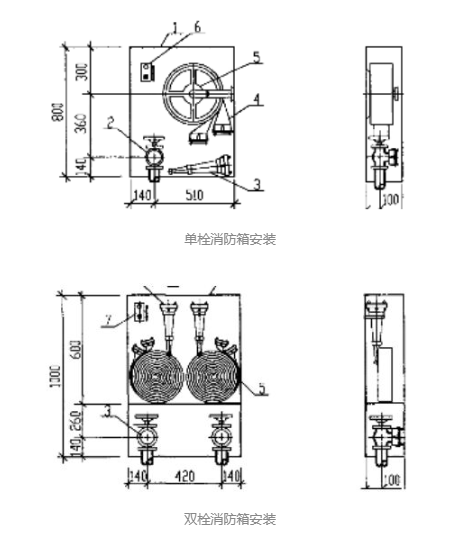
1)消火栓栓口離地高度1.1m,栓口朝外。
2)單個(ge) 消火栓不應安裝在消防箱門軸側(ce) 。
3)消防箱箱體(ti) 安裝垂直度允許偏差3mm,安裝完畢封閉多餘(yu) 孔洞及孔洞縫隙。
4)消火栓箱門易打開,開啟角度不小於(yu) 120°;采用石材等裝飾材料的消防箱門應開啟靈活(開啟拉力≯50N);箱門外標識明顯。
5)消火栓箱內(nei) 水龍帶、水槍、軟管等安放到位。

➣ 消火栓(箱)安裝注意事項:
1)消火栓支管以栓閥的坐標、標高定位甩口,核定後穩固消火栓箱,待箱體(ti) 找正固定後再安裝栓閥。消火栓箱安裝的垂直度允許偏差為(wei) 3mm。
2)消火栓箱體(ti) 若采用暗裝或半暗裝時,需在土建砌磚牆時,預留好消火栓箱洞,待消火栓箱就位找正找平後,用水泥砂漿填塞箱四周空間;明裝時采用膨脹螺栓固定。安裝在輕質隔牆上應有加固措施。
3)箱體(ti) 配件安裝時,消防水龍帶應折好放在掛架上卷實、盤緊;消防水槍豎放在箱體(ti) 內(nei) 側(ce) ,自救式水槍和軟管放在掛卡上或放在箱底部。消防水龍帶與(yu) 水槍、快速接頭的連接,一般采用16#銅絲(si) 綁紮兩(liang) 道,每道不少於(yu) 兩(liang) 圈;使用卡箍時,在裏側(ce) 加一道銅絲(si) 。


二、噴淋頭安裝
➣ 噴淋頭安裝基本要求:
1)噴頭應居中安裝(與(yu) 裝飾吊頂排版配合),與(yu) 燈、煙感等成行成線。
2)直立型、下垂型標準噴頭濺水盤與(yu) 頂板的距離為(wei) 75~150mm。
3)噴頭裝飾蓋、罩應緊貼吊頂。
4)噴頭臂(單、雙)應統一縱向或橫向安裝。
5)大空間成排噴頭安裝成行成線。
➣ 噴淋頭安裝注意事項: 1)噴頭安裝前應與(yu) 精裝天花吊頂布置圖對照,優(you) 化噴頭安裝點位,防止與(yu) 煙感、燈具、喇叭等裝置衝(chong) 突。 2)明確精裝吊頂麵基準線和標高線,在龍骨調整定位後,測量噴頭短管的長度並安裝,防止短管過長或過短。 3)天花吊頂噴頭開孔由精裝施工單位負責。

· 當噴頭安裝在不到頂的隔斷附近時,噴頭與(yu) 隔斷的水平距離和最小垂直距離應符合下表的規定:

· 當噴頭濺水盤高於(yu) 附近梁底或寬度小於(yu) 1.2m的風管、排管、橋架腹麵時,噴頭濺水盤高於(yu) 梁底、風管、排管、橋架腹麵的更大 垂直距離應符合下表的規定:

· 當梁、風管、排管、橋架寬度大於(yu) 1.2m時,增設的噴頭應安裝在其腹麵以下部位。



